hus i fjaltring

a house in fjaltring

This summer-house concept takes place on the western Danish island of Jutland, in the sleepy coastal village of Fjaltring. The client wished for a home with contemporary agricultural aesthetic. It would be constructed in typology reflecting the older surrounding buildings but wrapped in weather-proof corrugated alloy and poly-carbonate sheet. It was to host visitors, support a greenhouse and a workshop for his trade projects.

the core and heart of the home

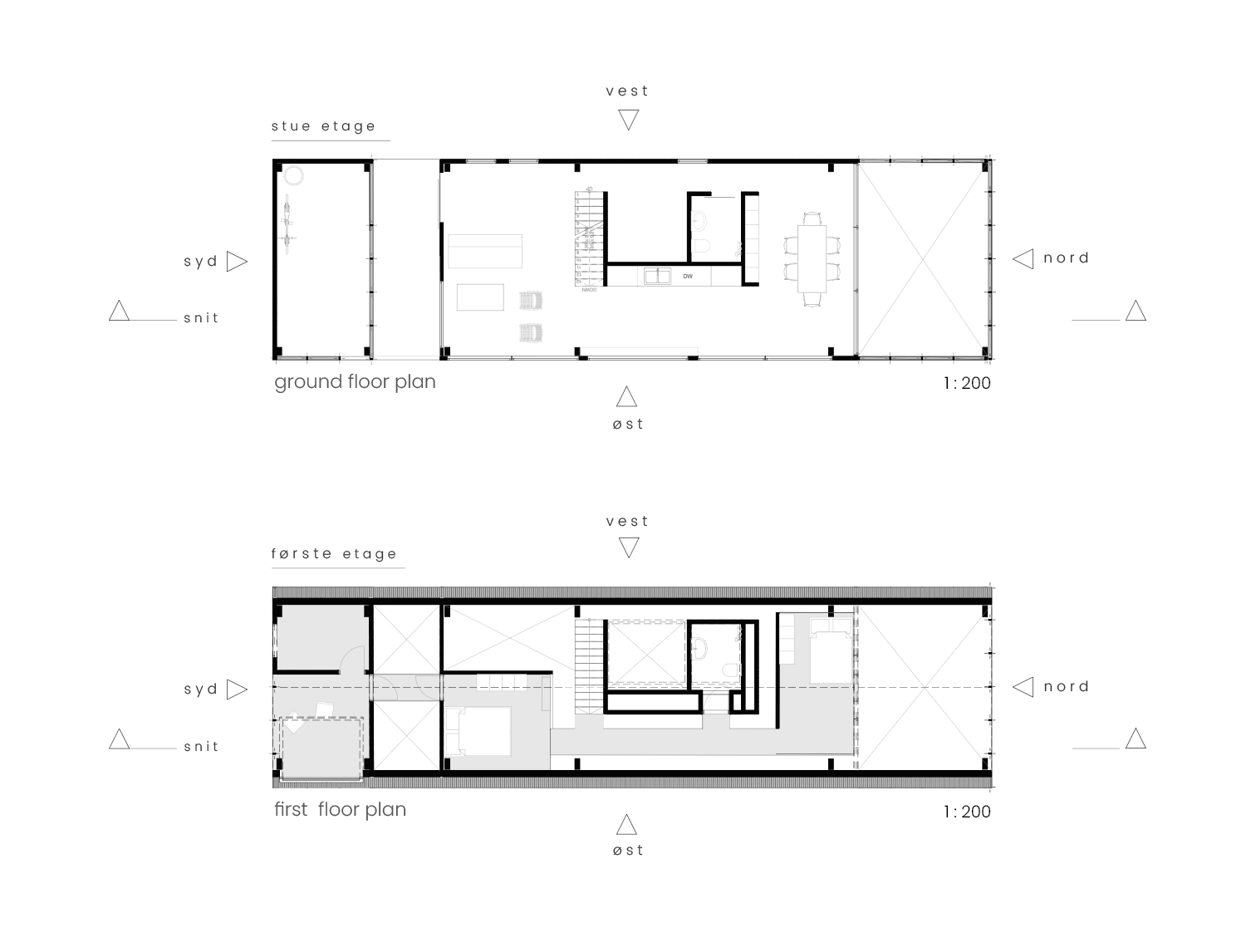
Built around a column of household utility at the center, with all plumbing systems stacked, the summer house saves an engineering pursuit that generally plagues most new builds. The stacked nature of wet area facility unifies an elegant and less elaborate solution to waste management of a family home. In simple terms, the ground-floor/first-floor bathroom water and waste produce can run alongside the infrastructure to the kitchens'. A potential plumbers wet-dream, but also cost-effective for the modern household.

of the landscape

Whilst this house is not a completed build, it remains in the Spatial Thought portfolio as a staple reference to the studio's design process and aesthetic. Understanding people, selecting materiality with awareness of context; landscape, cultural significance and the appreciation of nature.